Este site utiliza cookies para permitir a mudança de língua e o armazenamento dos seus imóveis favoritos. Ao utilizar este site, concorda que o mesmo utilize cookies.

Terreno 787m2 projeto aprovado para moradia T4 de 172m2 em 2 pisos, Santa Catarina Caldas Rainha

100.000€



Referência

0083

Natureza

Venda

Tipo de Imóvel

Terreno

Subtipo de Imóvel

Terreno Urbano

Tipologia

T4

Estado

Por Recuperar

Certificado energético

Isento


Distrito

Leiria

Concelho

Caldas da Rainha

Freguesia

Santa Catarina

Código Postal

2500-761


Área Útil

172 m2

Área Bruta

172 m2

Área de Terreno

787 m2



Contactar Imobiliária

*Preenchimento obrigatório
Ao clicar em 'Enviar', declara que aceita a nossa Política de Privacidade.
Terreno 787m2 projeto aprovado para moradia T4 de 172m2 em 2 pisos, Santa Catarina Caldas Rainha 
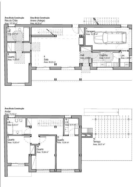
Projeto já aprovado na câmara municipal de Caldas da Rainha, com a licença a levantamento. 
Existe uma moradia em fase inicial de reabilitação, será vendida na fase em que se encontra. A sua reabilitação poderá ter continuidade, ou simplesmente iniciar construção de raiz. 
O projeto comtempla uma moradia de 4 quartos, 2 pisos, no piso 0 sala, cozinha, 1 quarto, garagem e casa de banho, e no piso 1 1 suite, 2 quartos, casa de banho e terraço.
Poderá haver possibilidade de execução do término da construção, sob orçamento.
Abrunheira, é uma pacata e simpática aldeia, da freguesia de Santa Catarina, fica localizada na Costa de Prata, Portugal. Localizada em lugar muito tranquilo, pertinho da cidade de Caldas da Rainha e Alcobaça, onde a qualidade da vida é rainha, cheia de cultura, gastronomia e natureza, encontra este belo projeto de recuperação. 
O posicionamento da moradia, permite disfrutar de uma vista desafogada e soberba, sobre a natureza, com uma exposição solar fantástica durante todo o dia.
Com proximidade de todas as praias da Costa de Prata (Foz do Arelho, Baía de São Martinho do Porto, Castelo de Óbidos, Jardim Budha Eden, Peniche Praia dos super tubos, Praia d'El Rey, Lourinhã e Nazaré), a 15 minutos dos acessos às autoestradas A8 e A1.
Venha descobrir as potencialidades desta propriedade e o estilo de vida que tem para lhe oferecer.
Se as fotos lhe despertam o interesse, se consegue imaginar-se a viver neste cenário, ou se esta oportunidade de investimento está alinhada com os seus interesses, agende agora mesmo a sua visita.
Não perca esta oportunidade de realizar um excelente investimento!
O meu nome é Sofia Feliciano, sou consultora imobiliária da JBP Imobiliária, em Caldas da Rainha, Costa de Prata, Portugal.
Na JBP, partilhamos negócios com qualquer consultor imobiliário ou agência imobiliária com licença AMI.
Se é profissional do sector e tem um cliente qualificado, contacte-me para obter mais informações e agende a sua visita.
Geral
VistasCampo:Sim
VistasPanorâmicas:Sim
Exposição SolarNascente:Sim
Exposição SolarNorte:Sim
Exposição SolarPoente:Sim
Exposição SolarSul:Sim
GeraisMurada:Sim
AcessosAsfalto:Sim
Edificio
ÁguaCompanhia:Sim
GeraisPermite animais:Sim
Zona
ProximidadeBancos:Sim
ProximidadeEscolas:Sim
ProximidadeFarmácias:Sim
ProximidadeJardins:Sim
ProximidadeJardins de infância:Sim
ProximidadePadarias:Sim
ProximidadeSupermercados:Sim
AcessosAlcatrão:Sim

Este imóvel não tem áreas definidas.

Imóveis
Semelhantes

Terreno
Venda
Exclusivo

87.000€

Terreno 1.050m2 para construção localizado em...

87.000€

Leiria / Caldas da Rainha / Nossa Senhora do Pópulo, Coto e São Gregório


Ref: 0080

Ref: 0080

Isento

Terreno
Venda
Vendido

Preço sob consulta

Terreno urbano 1.551m2, projeto aprovado, lic...

Preço sob consulta

Leiria / Caldas da Rainha / Santa Catarina


Ref: 0069

Ref: 0069

Terreno
Venda

72.000€

Terreno Urbano com Projeto Aprovado

72.000€

Leiria / Caldas da Rainha / Alvorninha


Ref: 0036

Ref: 0036

140 m2