Este site utiliza cookies para permitir a mudança de língua e o armazenamento dos seus imóveis favoritos. Ao utilizar este site, concorda que o mesmo utilize cookies.

Apartamento T2+1, 94m2, renovado, rés de chão, lugar garagem, arrecadação, Nazaré

500.000€



Referência

0071

Natureza

Venda

Tipo de Imóvel

Apartamento

Tipologia

T2+1

Estado

Remodelado

Certificado energético

E

Ano

2000


Distrito

Leiria

Concelho

Nazaré

Freguesia

Nazaré

Código Postal

2450-106


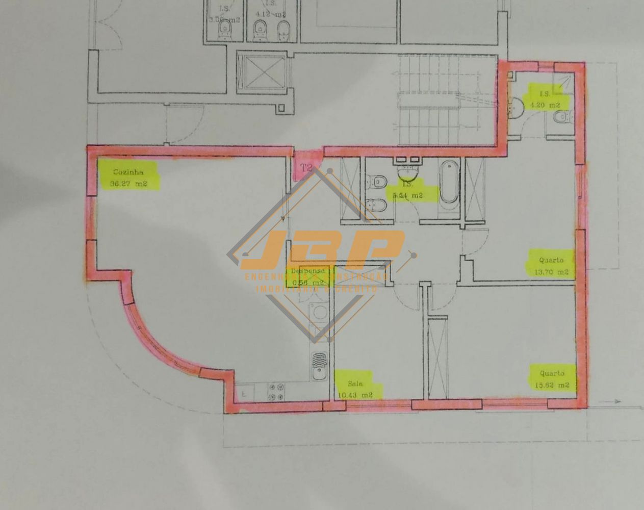
Área Útil

94 m2

Área Bruta

100.44 m2

Área de Terreno

0 m2



Contactar Imobiliária

*Preenchimento obrigatório
Ao clicar em 'Enviar', declara que aceita a nossa Política de Privacidade.
Apartamento T2+1, 94m2, renovado, rés de chão, lugar garagem, arrecadação, Nazaré
Este apartamento na caderneta das finanças está classificado como T2 + 1 embora, como se pode ver pelas imagens, está convertido num apartamento T3 onde o 3º quarto dispõe também de roupeiro embutido.
Se procura um apartamento a 2 minutos a pé da praia, não procure mais acabou de o encontrar!
Na Avenida Manuel Remígio, encontra esta oportunidade única, um verdadeiro achado, a 2 passos a pé da praia, uma localização privilegiada.
Imagine viver no coração da icónica vila da Nazaré, a poucos metros da praia, num apartamento T2+1 totalmente remodelado, com acabamentos de alta qualidade e um estilo moderno e funcional. 
Se procura um refúgio à beira-mar, com conforto e charme, esta é a sua oportunidade!
Com uma área bruta de 94 m² úteis, o apartamento dispõe de uma cozinha e sala em open space, ideal para abundantes momentos de lazer e convívio. A cozinha está totalmente equipada, pronta para dar asas à tua criatividade culinária. Possibilidade de ficar todo mobilado. 
O apartamento dispõe de licença AL válida e com ótima classificação no Booking.
Os três quartos têm dimensões generosas, amplos e luminosos. Contam com armários embutidos para maximizar o aproveitamento do espaço. A suíte principal está equipada com ar condicionado, para maior conforto.
O apartamento inclui lugar de estacionamento, oferecendo segurança e comodidade.
A orientação este-oeste garante luz natural durante todo o dia.
Este apartamento é a escolha perfeita para quem procura conforto e qualidade de vida junto ao mar.
Não perca a oportunidade de viver num local onde cada dia começa com o som relaxante das ondas!
Na JBP imobiliária, partilhamos negócios com qualquer consultor imobiliário ou agência imobiliária com licença AMI. Se é profissional do sector e tem um cliente qualificado, contacte-me para obter mais informações e agende a sua visita. Não perca esta oportunidade de realizar um excelente investimento. O meu nome é Sofia Feliciano, sou consultora imobiliária da JBP Imobiliária na Costa de Prata, Portugal.
Geral
GeraisMobilado:Sim
GeraisPisos:1
GeraisRés do chão:Sim
GeraisNº de Divisões :7
GeraisNº de Casas de Banho:2
GeraisNº de Arrecadações:1
GeraisDespensa:Sim
GeraisArmário de roupa / closet:Sim
GeraisSuite:Sim
GeraisAdaptado a mobilidade reduzida:Sim
GeraisRecomendado para crianças:Sim
ClimatizaçãoAr condicionado:Sim
ClimatizaçãoEsquentador:Sim
CaixilhariaDupla:Sim
CaixilhariaPVC:Sim
VistasCidade:Sim
VistasMar:Sim
VistasPraia:Sim
Exposição SolarNascente:Sim
Exposição SolarPoente:Sim
Quarto de BanhoComum:Sim
Quarto de BanhoPróprio:Sim
Luz NaturalMuito Iluminado:Sim
InfraestruturasEsgotos:Sim
GaragemLugar Interior:Sim
CozinhaMóveis madeira:Sim
CozinhaPlaca:Sim
CozinhaForno:Sim
CozinhaMicro-ondas:Sim
CozinhaFrigorífico:Sim
PavimentoCerâmica:Sim
PavimentoFlutuante:Sim
Edificio
ElevadorNº de Elevadores:1
GaragemPortão automático:Sim
GeraisPermite animais:Sim
GeraisAcesso mobilidade reduzida:Sim
GeraisEstacionamento incluido:Sim

Este imóvel não tem áreas definidas.

Imóveis
Semelhantes

Apartamento
Venda

285.000€

Apartamento com vista mar

285.000€

Leiria / Nazaré / Nazaré


Ref: 0089B

Ref: 0089B

97 m2

2

2

Sim

Apartamento
Venda

450.000€

Apartamento vista mar com piscina privada

450.000€

Leiria / Nazaré / Nazaré


Ref: 0089G

Ref: 0089G

90 m2

2

2

Apartamento
Venda

500.000€

Apartamento vista mar com piscina privada

500.000€

Leiria / Nazaré / Nazaré


Ref: 0089F

Ref: 0089F

90 m2

3

2